Castellane (04120) Terrain Constructible
A Castellane, dans un quartier calme, proche de la nature, saisissez une belle opportunité de construire votre maison sur un terrain plat ayant toutes les viabilités en bordure de terrain.
Vous bénéficierez d'une surface de 1425m² et 1 263 m2 pour édifier votre chez-soi (parcelle D2593). Vous bénéficiez d'une belle exposition Sud.
Le centre ville est à proximité et accessible à pied : 5-10mn dans le quartier Notre Dame à quelques minutes du gymnase.
Castellane est LA commune aux Portes des Gorges du Verdon et vous propose toutes les activités pour résider à l'année ou profiter en résidence secondaire des nombreuses activités de pleine nature du Parc du Verdon.
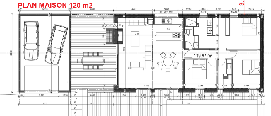
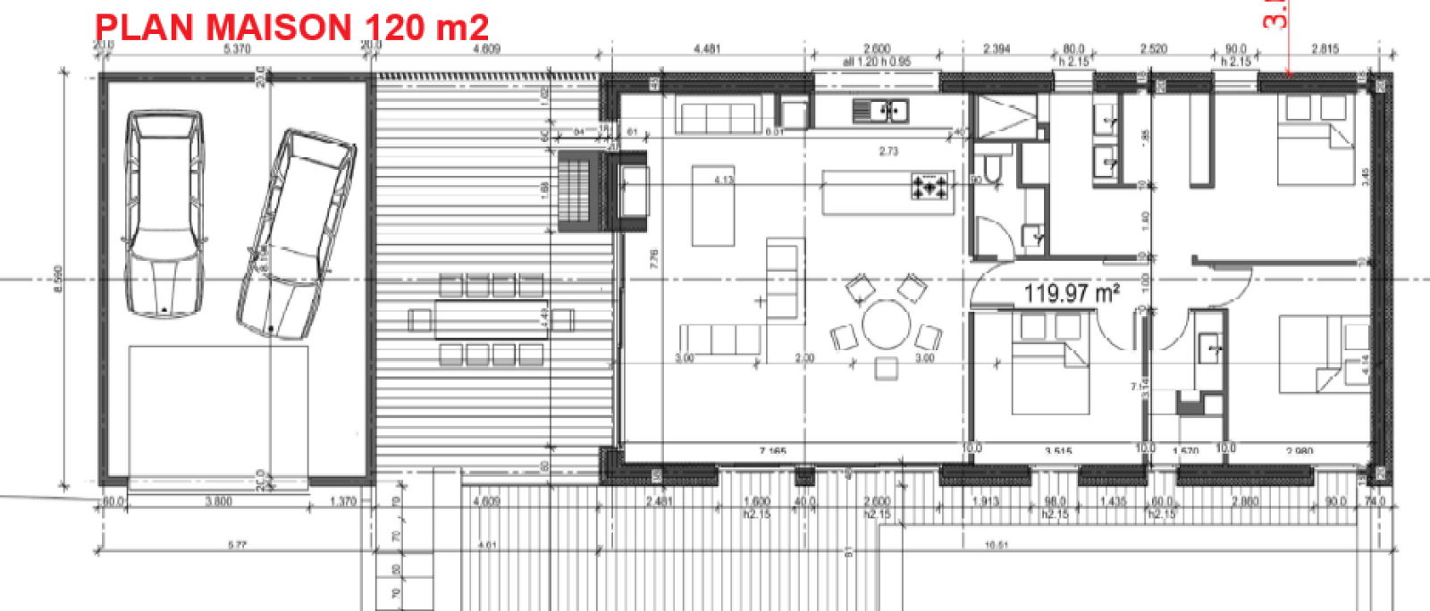
Deux permis de construire sont valides sur ce terrain : soit 120 m2 avec garage et 4 chambres, soit 75m2 avec 3 chambres et garage
La construction sera à démarrer dans le délai du permis de construire soit avant le 26/10/2027 pour 120 m2 ou janvier 2028 pour le 75m2.
Les informations recueillies sur ce formulaire sont enregistrées dans un fichier informatisé par La Boite Immo agissant comme Sous-traitant du traitement pour la gestion de la clientèle/prospects de l'Agence / du Réseau qui reste Responsable du Traitement de vos Données personnelles.
La base légale du traitement repose sur l'intérêt légitime de l'Agence / du Réseau.
Elles sont conservées jusqu'à demande de suppression et sont destinées à l'Agence / au Réseau.
Conformément à la loi « informatique et libertés », vous disposez des droits d’accès, de rectification, d’effacement, d’opposition, de limitation et de portabilité de vos données. Vous pouvez retirer votre consentement à tout moment en contactant directement l’Agence / Le Réseau.
Consultez le site https://cnil.fr/fr pour plus d’informations sur vos droits.
Si vous estimez, après avoir contacté l'Agence / le Réseau, que vos droits « Informatique et Libertés » ne sont pas respectés, vous pouvez adresser une réclamation à la CNIL.
Nous vous informons de l’existence de la liste d'opposition au démarchage téléphonique « Bloctel », sur laquelle vous pouvez vous inscrire ici : https://www.bloctel.gouv.fr
Dans le cadre de la protection des Données personnelles, nous vous invitons à ne pas inscrire de Données sensibles dans le champ de saisie libre.
Ce site est protégé par reCAPTCHA, les Politiques de Confidentialité et les Conditions d'Utilisation de Google s'appliquent.
Détails des diagnostics énergétiques
Terrain à bâtir de 980m² à Colmars
